Description
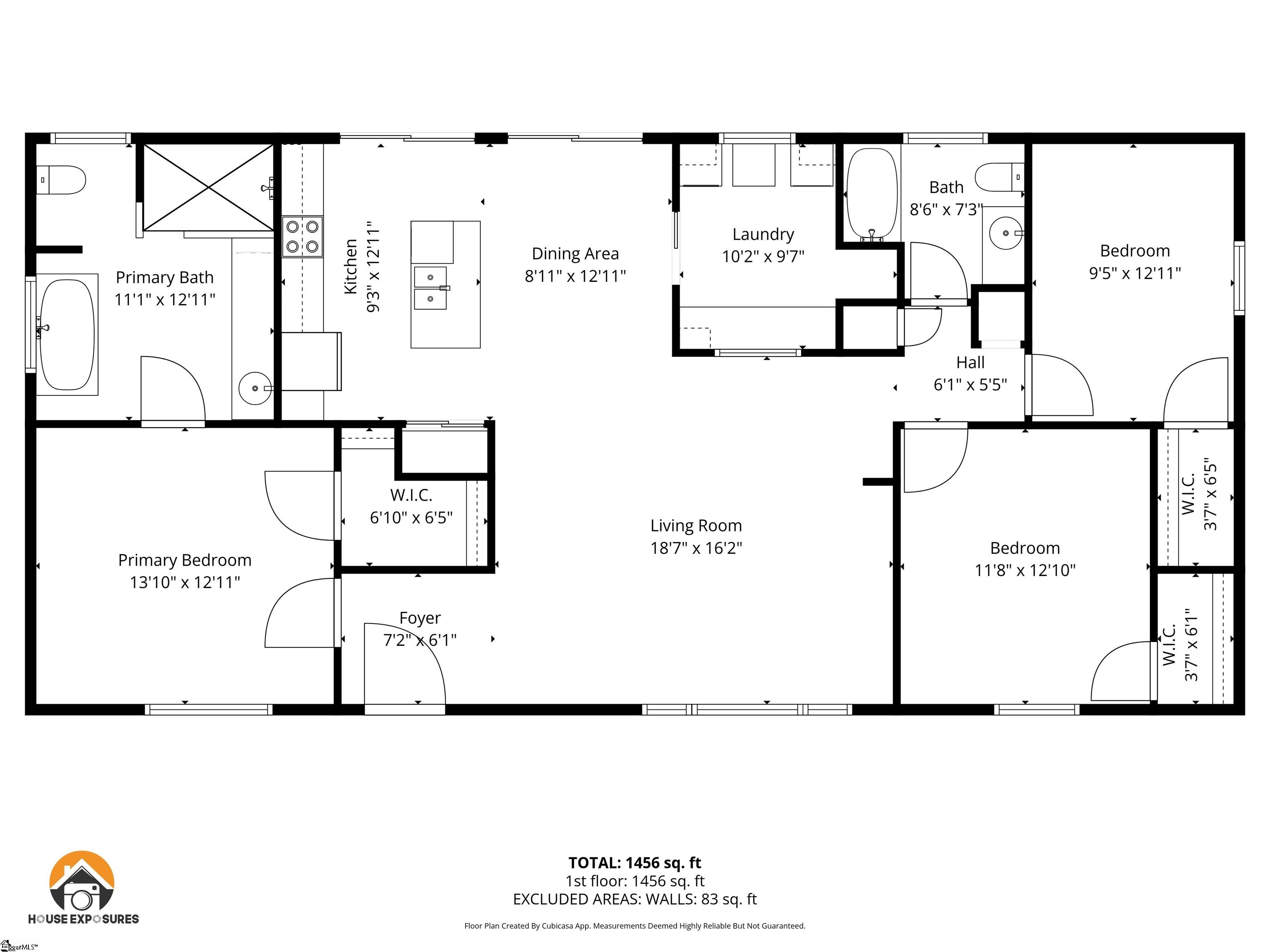
This beautifully maintained 3-bedroom, 2-bath home offers both comfort and style on 1 acre of land. The bright, open living room features built in storage and TV that will convey with property. Spacious, bright, open kitchen looks out to private, wooded backyard. The primary bathroom boasts a stunning standalone soaking tub, custom tile walk in shower, dual vanities and custom cabinetry, perfect for relaxing at the end of the day. Each spacious bedroom features its own walk-in closet, providing ample storage and convenience. The home has seen numerous updates, including new flooring installed in 2021 throughout the entry, kitchen, dining room, and hallway, as well as fresh interior paint completed in 2026. A complete new heat pump system was installed in 2023, ensuring energy efficiency and year-round comfort. You'll also appreciate the large walk-in laundry room, offering plenty of space for organization and added functionality. Step outside to enjoy the expansive yard, fully enclosed with a fence added in 2017, ideal for pets, play, or privacy. A storage shed, also installed in 2017, adds even more functionality to the property. Come make it yours today!
Listing Agent: Neil Gobbel
Listing Office: Coldwell Banker Caine/Williams
Attribution contact:
Nearby Schools
Slater MariettaElementary School
NorthwestMiddle School
Travelers RestHigh School
Location
Listed By
Listing Agent
Neil Gobbel
Coldwell Banker Caine/Williams
The Listings data contained on this website comes from various participants of The Multiple Listing Service of Greenville, SC, Inc. Internet Data Exchange. IDX information is provided exclusively for consumers' personal, non-commercial use and may not be used for any purpose other than to identify prospective properties consumers may be interested in purchasing. The properties displayed may not be all the properties available. All information provided is deemed reliable but is not guaranteed. © Greater Greenville Association of REALTORS®. All Rights Reserved. Updated: 17th April, 2026 11:38 PM (UTC)



